重庆樱花坊论坛网址,北京茶楼信息网论坛,22324濠江论坛免费论坛

Position : Home > Products > Door operator series
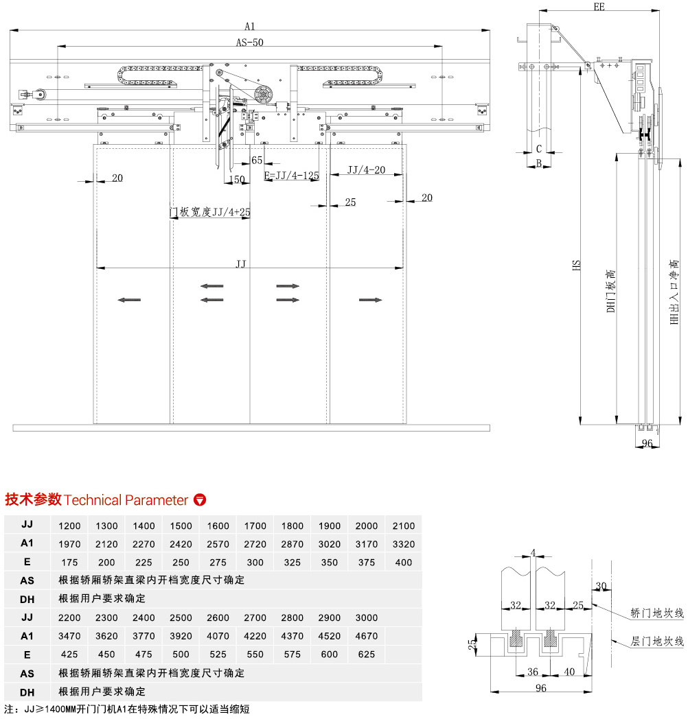
4-panel center opening VVVF door operator
Prev: 4-panel center opening VVVF door operator Next: 2-panel sliding VVVF door operator
主站蜘蛛池模板: 文安县| 新巴尔虎右旗| 温泉县| 临夏市| 白城市| 德清县| 佛教| 乐安县| 新和县| 苏尼特左旗| 纳雍县| 广东省| 桐柏县| 荔波县| 天长市| 若羌县| 灵台县| 正宁县| 镇安县| 桃园县| 铜鼓县| 高陵县| 凭祥市| 府谷县| 武威市| 麟游县| 平利县| 湘乡市| 芦溪县| 秀山| 庆城县| 白河县| 富蕴县| 塔河县| 潞西市| 巴彦淖尔市| 河南省| 龙山县| 永修县| 依兰县| 巩留县|